盐城原墅国际设计师——王建先生,你好,很感谢你在百忙之中还能接受我的采访
发布时间:2022-02-13 16:59:52 作者:佚名 点击:494 【 字体:大 中 小 】
今天很荣幸的能够采访到盐城原墅国际装饰公司其中一位设计师,据说他设计的效果收获到许多业主的点赞好评;究竟这个设计师的实力如何呢,快点跟随盐城装修网的小编一块来了解了解吧。
盐城原墅国际设计师——王建

小编:王建先生,你好,很感谢你在百忙之中还能抽出时间接受我的采访!先来给大家简单做个自我介绍吧!
设计师:大家好盐城家装论坛,我是盐城原墅国际的设计师——王建。
小编:王老师,为了让更多观众了解你,我可以采访你几个关于设计方面的问题吗?
设计师:当然可以,我也特别的期待!
小编:那么你最擅长设计什么样的装修风格呢?
设计师:我比较擅长简约、现代、中式、混搭风格。
小编:那你比较擅长什么样的装修空间呢?
设计师:普通住宅、别墅、大平层等
小编:你从事设计行业多长时间了?你的设计理念是什么呢?
设计师:我从事设计行业已经有十余年了,我一直以来的设计理念就是以实用和装饰二者应互相协调,求的功能和形式统一而有变化,使室内空间舒适得体,富有个性。
小编:今天的采访到这里就结束了,很感谢您能接受我们的采访,在采访的最后,我们可以看一下你的设计作品吗?
设计师:当然可以!
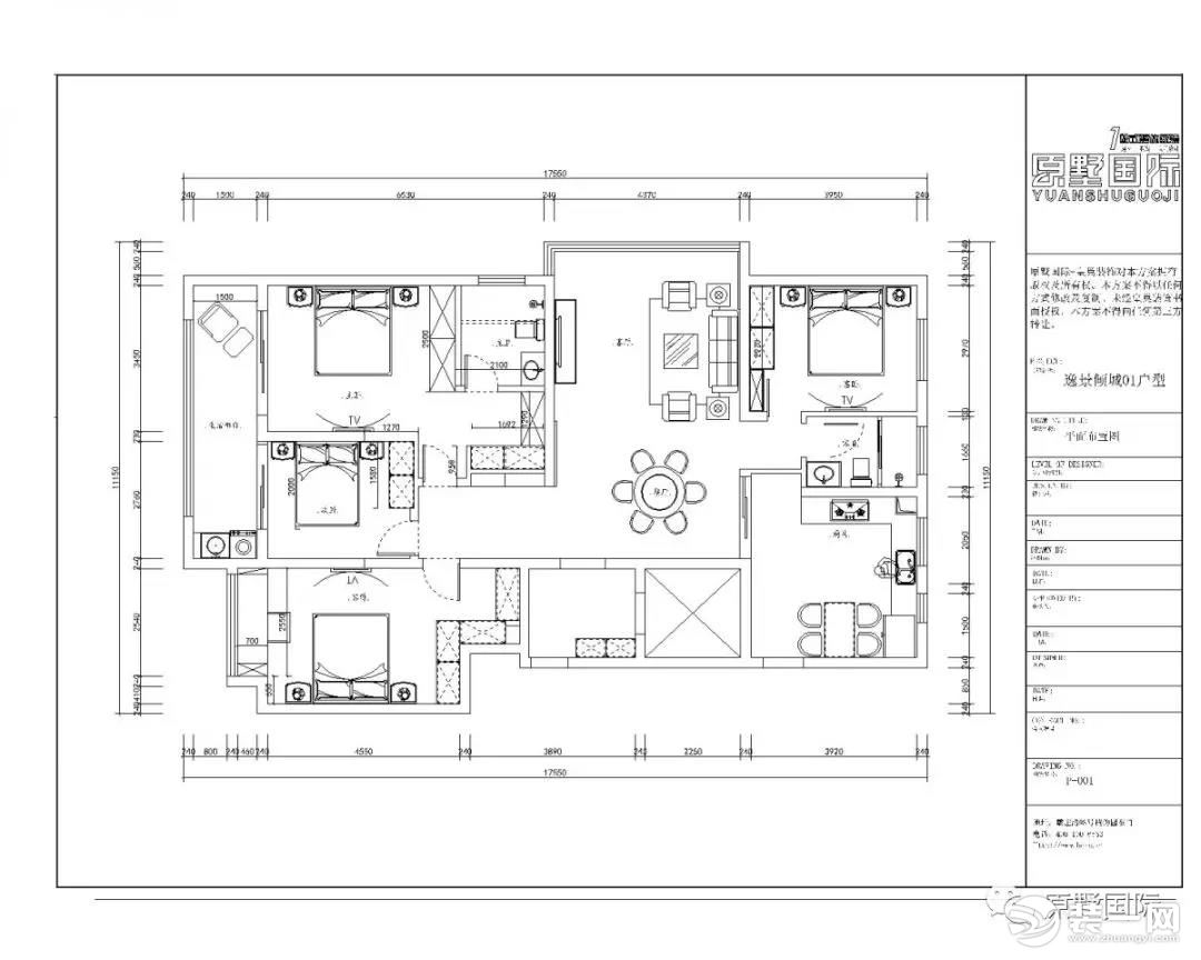
案列一
小区地址:逸景倾城
设计风格:后现代风格
案例面积:167平米
案例预算:20万
设计理念:后现代风格的设计中强调以人为本的设计原则,强调人在技术中的主导地位,更加注重人性化和自由化。
平面布置图

装修效果图

后现代的设计更加贴合现代人的生活方式,把极简的元素融入设计的血液之中。

通过光影的表现手法,表现家的静谧,橘色的点缀,带了一丝灵气。

本案例的入户门厅,配有黑色装饰柜,更显大气。

客餐厅整体一览,灯光和线条的无缝衔接,尊贵优雅

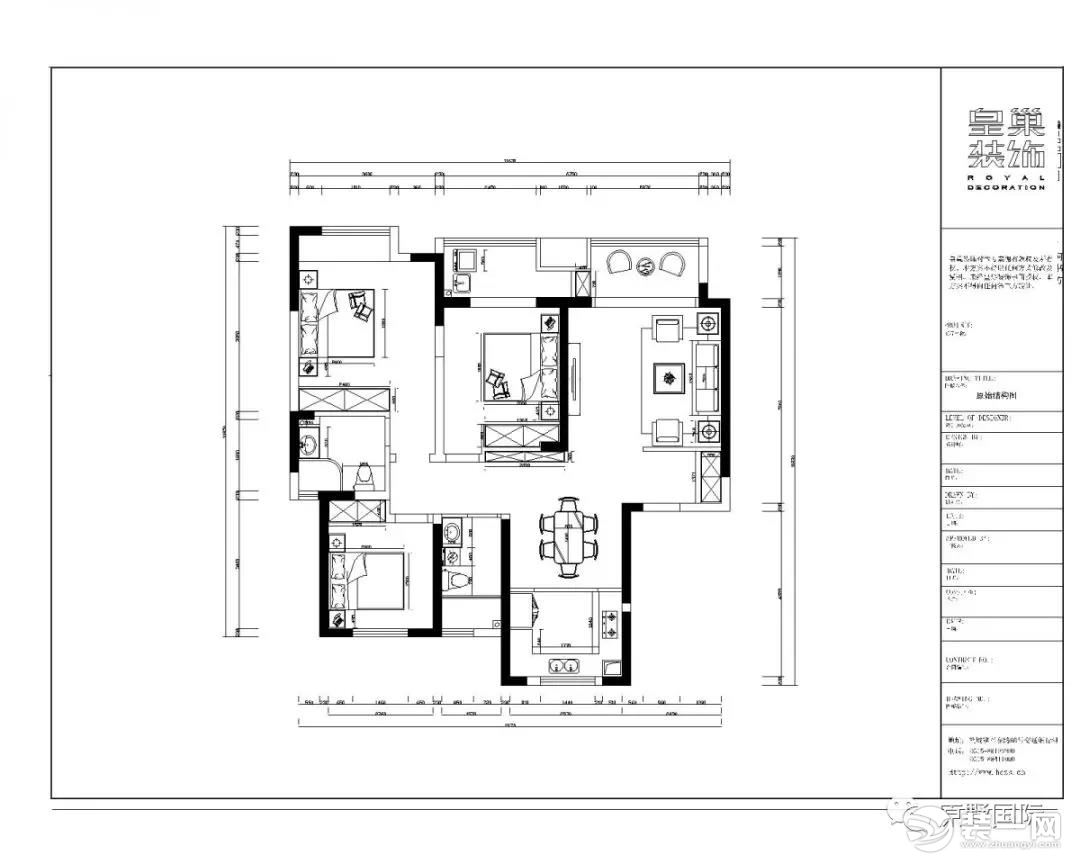
案列二
小区地址:悦龙湾
设计风格:现代轻奢风格
案例面积:136平米
案例预算:16万
设计理念:本案例注重高品质与设计感,在硬装修中以现代元素为设计手法,通过家具和部分软装来体现轻奢效果,将优雅时尚的质感结合着现代材质及装饰技巧巧妙地呈现在居室中
原始结构图

平面布置图

装修效果图

客厅展示着精致高端的生活态度,不需要走在前端,更不需要炫耀夸赞,低调,舒适,却无损高贵与雅致,尽情享受生活的美好。

满目所及的奢华效果之外,满足于身心感受的奢华感也是至关重要的盐城家装论坛,


在没有任何束缚和压力的环境中,最终打造出一个能让身心完全放松,无比舒适的温馨家居环境。

以上就是盐城装修网小编采访盐城原墅国际装饰设计师王建的全部内容了,是不是看了上面的采访对原墅国际设计师王建有了新的认识呢?想要装修的小伙伴你还在犹豫什么,这么优秀的设计师,赶快联系他们吧!
猜你喜欢
建湖 建湖公交司机暖心助老获赠锦旗,81岁伤残军人夫妇出行难题得解决
90
江苏省如东、阜宁、睢宁三县2035国土空间规划获批,擘画苏北县域发展新蓝图
85
射阳 射阳县统筹流域共治与区域自治 构筑安全屏障谱写生态新曲
113
射阳 射阳经济开发区与港区精准施策稳增长 培育服务业新业态谋发展
145
滨海 滨海新区召开二季度重点工作部署会议 严钢强调确保打赢翻身仗勇夺半年红
73
滨海 滨海新区中青年干部培训班聚焦跨境租赁创新 助力东疆高水平对外开放与产业发展
150
江苏盐城十大必玩景点推荐:中华麋鹿园等生态旅游胜地等你来打卡
贺轩分享4.17-4.18全国最新工程招聘合集大全及西南工程联盟十周年庆典抽奖活动
建湖 建湖公交司机暖心助老获赠锦旗,81岁伤残军人夫妇出行难题得解决
2025盐城经济技术开发区上海科创中心推介会成功举办 共绘长三角科创合作新蓝图
江苏盐城构建三大政府性产业母基金体系 以耐心资本推动区域高质量发展
盐城市亭湖区2025年教师招聘资格复审通知:时间地点及材料要求
江苏省如东、阜宁、睢宁三县2035国土空间规划获批,擘画苏北县域发展新蓝图
江苏2025年招聘公告汇总:开放大学、苏州工学院、科技大学等多岗位招聘
射阳 射阳县统筹流域共治与区域自治 构筑安全屏障谱写生态新曲
江西省网约车驾驶员资格审查平台上线,南宁市8家网约车平台签署自律公约
江苏盐城十大必玩景点推荐:中华麋鹿园等生态旅游胜地等你来打卡
贺轩分享4.17-4.18全国最新工程招聘合集大全及西南工程联盟十周年庆典抽奖活动
建湖 建湖公交司机暖心助老获赠锦旗,81岁伤残军人夫妇出行难题得解决
2025盐城经济技术开发区上海科创中心推介会成功举办 共绘长三角科创合作新蓝图
江苏盐城构建三大政府性产业母基金体系 以耐心资本推动区域高质量发展
盐城市亭湖区2025年教师招聘资格复审通知:时间地点及材料要求
江苏省如东、阜宁、睢宁三县2035国土空间规划获批,擘画苏北县域发展新蓝图
江苏2025年招聘公告汇总:开放大学、苏州工学院、科技大学等多岗位招聘
射阳 射阳县统筹流域共治与区域自治 构筑安全屏障谱写生态新曲
江西省网约车驾驶员资格审查平台上线,南宁市8家网约车平台签署自律公约
江苏盐城十大必玩景点推荐:中华麋鹿园等生态旅游胜地等你来打卡

贺轩分享4.17-4.18全国最新工程招聘合集大全及西南工程联盟十周年庆典抽奖活动

建湖 建湖公交司机暖心助老获赠锦旗,81岁伤残军人夫妇出行难题得解决

2025盐城经济技术开发区上海科创中心推介会成功举办 共绘长三角科创合作新蓝图

江苏盐城构建三大政府性产业母基金体系 以耐心资本推动区域高质量发展

盐城市亭湖区2025年教师招聘资格复审通知:时间地点及材料要求

江苏省如东、阜宁、睢宁三县2035国土空间规划获批,擘画苏北县域发展新蓝图

江苏2025年招聘公告汇总:开放大学、苏州工学院、科技大学等多岗位招聘

射阳 射阳县统筹流域共治与区域自治 构筑安全屏障谱写生态新曲

江西省网约车驾驶员资格审查平台上线,南宁市8家网约车平台签署自律公约

