金华市区湖海塘商业综合体项目湖畔里开工现场然而可惜不是你!
发布时间:2022-02-11 10:03:21 作者:佚名 点击:517 【 字体:大 中 小 】
金华市区湖海塘公园建成以后,优美的环境使湖海塘板块的居住环境越来越宜人。然而,商业及生活配套的缺少,也是这个区块最大的短板。

因而,总投资9.25亿元、规划用地面积42亩、总建设面积约10万平方米的“湖畔里”——湖海塘边的大型商业体,一举一动备受市场关注。

3月2日,2020金华市首届云招商招才活动通过多平台网络直播形式举行,共推出标准地29宗、3261亩,签约招商项目(含意向)20个、总投资471.6亿元。其中,湖海塘板块的商业综合体项目湖畔里就在意向签约名单当中,并在云签约会上成功与新城控股签约投资意向。

会议现场
消息一出,各大媒体都发文表示,湖海塘的新城吾悦广场或许要来了!

紧接着盐城吾悦生活广场,湖畔里商业综合体项目正式动工开建,预计到2021年的10月底,整个项目将大致呈现。

湖畔里开工现场
然而,可惜不是你!
据悉,博衍商业成功中标金华湖海塘商业综合体,负责湖畔里和活力中心前期技术咨询、招商及运营管理服务,定名“金华大有天地”,目前项目招商工作已启动。


那新城吾悦广场还来么?据悉,会在金华市区另有选址。
杭州博衍商业管理有限公司是一家以策划、招商、运营、销售四位一体的商业服务型公司。公司立足长三角,服务辐射国内其他区域城市。自团队组建以来,成功操作完成了主题商业广场、百货类商场、购物中心、城市综合体及社区商业等多种形态近60个商用物业。
4月13日,据博衍商业微信公众号消息,博衍商业盐城大有天地、湖州大有天地、金华大有天地,三大商业项目同时启动招商!

“大有天地”系列购物中心是博衍旗下高端商业系列品牌之一。其中“大有城”系列为总体量8万方以上商业综合体、城市商业中心;“大有天地”系列为总体量3-6万方左右的购物中心、商业街区、邻里中心、社区商业中心;“大有世界”系列为总体量3万方以下的主题街区、文化街区、美食街区、潮流街区。

2018年,大有天地系列项目组正式成立,随着多个项目的同时启动,立足长三角积累了良好的开发经验盐城吾悦生活广场,未来将扩大商业规模,服务辐射国内其他区域城市。

项目名起“方寸之外 大有天地”,整体定位为面向各年龄层,集购物、餐饮、休闲、娱乐等多业态为一体的购物中心,体量多为3-6万方。随着“大有天地”系列品牌化的运营,逐步构建起城市互动体系,未来“大有天地”将成为国内新形态潮流商业综合体。

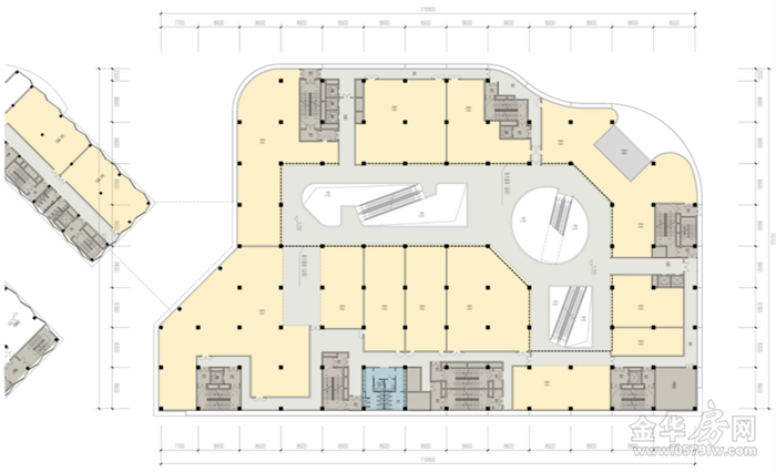
金华大有天地
项目总体规划为约5万方购物中心+酒店新型商业综合体。中国美院倾心蝶形建筑设计,集合轻奢、主题餐饮、潮流服饰、文创集合等业态为一体!

规模:总体量约5万方
区位:浙江省金华市湖海塘新区
定位:集合购物中心、酒店新型商业综合体中国美院倾心蝶形建筑设计,集合轻奢、主题餐饮、潮流服饰、文创集合等业态为一体,致力打造湖海塘核心商业综合体!



1F业态规划
精品零售、轻奢品牌、咖啡简餐。

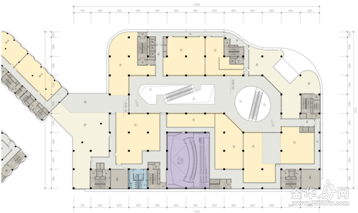
2F业态规划
潮流服饰、轻奢品牌、珠宝品牌。

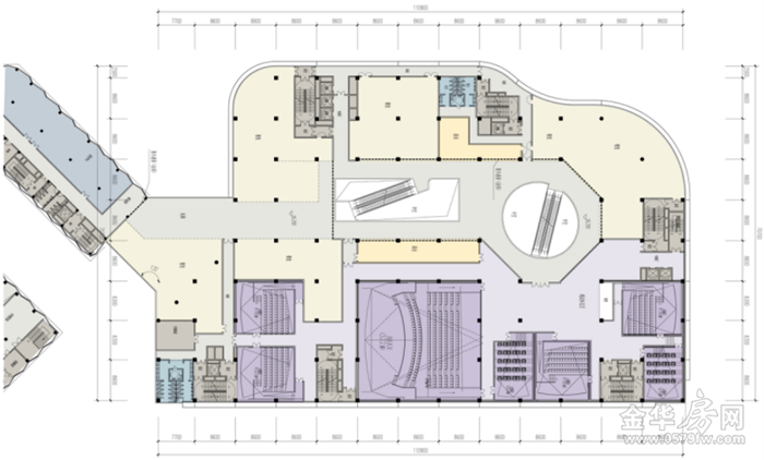
3F业态规划
数码通讯、生活配套、潮玩集合店、童玩电玩、儿童服饰、运动品牌、运动集合店、休闲时尚商品、影院。


4F业态规划
全业态餐饮、网红饮品、电影院。

5F业态规划
生活馆、运动馆、潮流馆、文创馆、美食广场。

湖海塘作为金华当红宜居热门板块,区域内高品质大盘云集,半数以上均已交付使用,对商业生活配套的需求也是迫在眉睫,金华大有天地商业综合体的到来,可谓是如虎添翼,区域价值更加值得期待。
江苏盐城十大必玩景点推荐:中华麋鹿园等生态旅游胜地等你来打卡
贺轩分享4.17-4.18全国最新工程招聘合集大全及西南工程联盟十周年庆典抽奖活动
建湖 建湖公交司机暖心助老获赠锦旗,81岁伤残军人夫妇出行难题得解决
2025盐城经济技术开发区上海科创中心推介会成功举办 共绘长三角科创合作新蓝图
江苏盐城构建三大政府性产业母基金体系 以耐心资本推动区域高质量发展
盐城市亭湖区2025年教师招聘资格复审通知:时间地点及材料要求
江苏省如东、阜宁、睢宁三县2035国土空间规划获批,擘画苏北县域发展新蓝图
江苏2025年招聘公告汇总:开放大学、苏州工学院、科技大学等多岗位招聘
射阳 射阳县统筹流域共治与区域自治 构筑安全屏障谱写生态新曲
江西省网约车驾驶员资格审查平台上线,南宁市8家网约车平台签署自律公约
江苏盐城十大必玩景点推荐:中华麋鹿园等生态旅游胜地等你来打卡
贺轩分享4.17-4.18全国最新工程招聘合集大全及西南工程联盟十周年庆典抽奖活动
建湖 建湖公交司机暖心助老获赠锦旗,81岁伤残军人夫妇出行难题得解决
2025盐城经济技术开发区上海科创中心推介会成功举办 共绘长三角科创合作新蓝图
江苏盐城构建三大政府性产业母基金体系 以耐心资本推动区域高质量发展
盐城市亭湖区2025年教师招聘资格复审通知:时间地点及材料要求
江苏省如东、阜宁、睢宁三县2035国土空间规划获批,擘画苏北县域发展新蓝图
江苏2025年招聘公告汇总:开放大学、苏州工学院、科技大学等多岗位招聘
射阳 射阳县统筹流域共治与区域自治 构筑安全屏障谱写生态新曲
江西省网约车驾驶员资格审查平台上线,南宁市8家网约车平台签署自律公约
江苏盐城十大必玩景点推荐:中华麋鹿园等生态旅游胜地等你来打卡

贺轩分享4.17-4.18全国最新工程招聘合集大全及西南工程联盟十周年庆典抽奖活动

建湖 建湖公交司机暖心助老获赠锦旗,81岁伤残军人夫妇出行难题得解决

2025盐城经济技术开发区上海科创中心推介会成功举办 共绘长三角科创合作新蓝图

江苏盐城构建三大政府性产业母基金体系 以耐心资本推动区域高质量发展

盐城市亭湖区2025年教师招聘资格复审通知:时间地点及材料要求

江苏省如东、阜宁、睢宁三县2035国土空间规划获批,擘画苏北县域发展新蓝图

江苏2025年招聘公告汇总:开放大学、苏州工学院、科技大学等多岗位招聘

射阳 射阳县统筹流域共治与区域自治 构筑安全屏障谱写生态新曲

江西省网约车驾驶员资格审查平台上线,南宁市8家网约车平台签署自律公约

